牙科学石膏产品线固化膨胀伸长仪-三角形截面槽
牙科学石膏产品线固化膨胀伸长仪-三角形截面槽
主要参数

型号:SRT-Z585
价格:电议
品牌:赛锐特
全国热线:13023169219
详细介绍
牙科学石膏产品线固化膨胀伸长仪-三角形截面槽
 
符合标准:
YY/T0462-2018
 
技术参数:
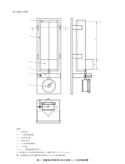
1三角形截面槽,见图2,图3,图4.由耐腐蚀的金属材料制成如铝、不锈钢或黄铜合金,能形成长100.0±0.1mm的试样。仪器与测量装置固定,使之能测定0.01mm的长度变化,并对试样施加不大于0.8N的测试力。样本槽的内截面应为一等腰三角形,两内截面边长30±1mm,夹角为90°槽的一端为封闭固定的,另一端为一可移动的质量为200±10g的活动块。在槽的内表面划出一条水平线,使三角形的边长为25±1mm。







当前位置:




